

技术参数在水利工程、市政给排水、农业灌溉等领域,机闸一体钢制闸门凭借集成化设计、可靠的止水性能和便捷的操作方式,成为流量控制与水位调节的核心设备。了解机闸一体钢制闸门的关键技术参数,尤其是安装尺寸参数,是确保设备适配工程预留结构、实现快速可靠安装运行的基础。本文将结合主流规格参数、安装尺寸及结构特点,为大家深入解析机闸一体钢制闸门的选型核心要点。
机闸一体钢制闸门的性能与适配性直接由其技术参数决定,不同规格型号的参数差异,对应着不同的工况适用场景。以下为市场常见规格的核心参数汇总及解读:
规格型号通常以孔口净宽 × 净高标识,是匹配工程预留通道的首要参数。目前市场主流规格涵盖 300×300mm 至 2000×2000mm 等多个等级,例如 500×500mm、1000×1000mm、1500×1500mm 等型号比较常见。孔口尺寸直接决定闸门的过流能力,需严格依据工程设计的流量需求与通道尺寸确定。
设计水头指机闸一体钢制闸门所能承受的*大水压力,单位以米水柱(m)计,是保障闸门结构安全的关键。主流产品的设计水头集中在 1-6m 区间,小规格闸门如 300×300mm 型号适配 1-3m 水头,适用于小型灌溉渠道或景观水系;较大规格如 2000×2000mm 型号可承载 1-6m 水头,能满足中小型水利枢纽的压力需求。若工程水头超过 6m,需对闸门进行特殊加固设计,提升结构强度。
门体厚度与设计水头、孔口尺寸正相关,直接影响机闸一体钢制闸门的抗变形能力。小规格闸门如 300×300mm 采用 6-8mm 厚钢板即可满足 1-3m 水头需求;1000×1000mm 型号因孔口增加,厚度提升至 10-12mm;而 2000×2000mm 型号需选用 16-20mm 厚钢板,配合加强筋板设计,确保在 6m 水头下不发生结构变形。门体材质多采用 Q235B 或 Q345B 碳素结构钢,兼具强度与焊接性能。
启闭力是启闭装置需输出的力值,单位为千牛(kN),由门体自重、水压力、摩擦阻力等共同决定。300×300mm 型号启闭力仅需 3-5kN,手动启闭即可满足需求;2000×2000mm 型号启闭力达 25-30kN,通常需配置电动启闭装置。启闭速度方面,螺杆式启闭机适用于中小型闸门,速度为 0.2-0.5m/min,运行平稳且自锁性好;卷扬式启闭机速度可达 1-2m/min,更适配对启闭效率有要求的场景。
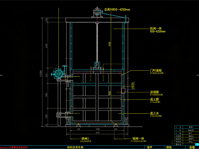
安装尺寸直接关系到机闸一体钢制闸门能否顺利嵌入工程预留结构,以下为市场主流规格的安装尺寸参数(单位:mm),其中 A、B 代表孔口尺寸,H 代表闸门总高度,w 代表闸门厚度,E 代表安装预留宽度:
| 公称通径(A×B) | A | B | H | w | E |
| 300×300 | 300 | 300 | 850 | 120 | 420 |
| 400×400 | 400 | 400 | 1050 | 120 | 520 |
| 500×500 | 500 | 500 | 1250 | 120 | 660 |
| 600×600 | 600 | 600 | 1450 | 120 | 760 |
| 700×700 | 700 | 700 | 1650 | 120 | 860 |
| 800×800 | 800 | 800 | 1850 | 120 | 960 |
| 900×900 | 900 | 900 | 2050 | 120 | 1060 |
| 1000×1000 | 1000 | 1000 | 2250 | 120 | 1160 |
| 1200×1200 | 1200 | 1200 | 2650 | 140 | 1360 |
| 1400×1400 | 1400 | 1400 | 3050 | 140 | 1560 |
| 1500×1500 | 1500 | 1500 | 3250 | 140 | 1660 |
| 1600×1600 | 1600 | 1600 | 3450 | 140 | 1760 |
| 1800×1800 | 1800 | 1800 | 3850 | 160 | 1960 |
| 2000×2000 | 2000 | 2000 | 4250 | 160 | 2160 |
安装时需严格对照此参数表,确保工程预留的门槽宽度、深度与闸门尺寸匹配,同时预留足够的启闭装置安装空间,避免因尺寸偏差导致安装受阻。

机闸一体钢制闸门的结构设计直接影响其性能与安装便利性,典型结构图包含以下核心部件:
门叶结构:作为核心受力部件,由 Q235B 或 Q345B 钢板焊接而成,面板根据承压需求设置加强筋板,厚度对应不同公称通径从 6mm 至 20mm 不等,确保抗水压变形能力。
密封部件:包含顶止水、侧止水和底止水,采用 P 型或 Ω 型橡胶止水带,贴合门叶与埋件缝隙,保障止水效果。
启闭装置:集成于闸门顶部,螺杆式或卷扬式启闭机通过传动结构连接门叶,手动或电动驱动实现闸门升降,启闭力与速度根据规格适配。
埋件部分:包括门槽轨道、底槛、侧轨等,预埋于混凝土结构中,轨道尺寸与闸门厚度(w)匹配,确保闸门升降顺畅无卡阻。
(注:实际选型时欢迎向我们索取 1:1 比例结构图,结合安装尺寸参数进行现场预留规划,图中需标注 A、B、H、w、E 等关键尺寸及部件装配关系。)

参数匹配优先:选型时需先明确工程的孔口尺寸、设计水头、安装空间等基础参数,对照核心参数与安装尺寸表选择适配型号。例如农业灌溉渠道多选用 500×500mm 或 800×800mm 型号,市政排水工程则可能需 1000×1000mm 以上型号,确保过流能力、承压需求与安装空间三者适配。
工况适配为王:若工程水质含泥沙较多,需加强门体防腐处理(热浸镀锌或重防腐涂料)与密封件耐磨性;若启闭频次较高,应优先选择电动启闭方式,降低人工成本。同时根据渠道布置方向,确定正向或反向受压的安装方式。
品质标准把控:选择符合国家标准的机闸一体钢制闸门,确保主体钢材力学性能达标、焊缝经过无损检测、表面防腐层厚度达标(热浸镀锌≥80μm,涂料总干膜≥250μm),密封件符合 GB/T 14173-1993《平面钢闸门 技术条件》标准,结合结构图核查部件装配合理性,保障长期使用性能。
机闸一体钢制闸门的技术参数与结构设计是连接产品与工程需求的核心纽带,从孔口尺寸、设计水头到安装尺寸、结构部件,每一项细节都直接影响设备的适配性与可靠性。在选型过程中,需结合工程实际工况,匹配参数规格,对照结构图与安装尺寸表做好预留规划,同时注重产品品质与制造标准。只有选对适配的机闸一体钢制闸门,才能为水利工程的安全稳定运行提供坚实保障。